PARDUODAMI DU SKLYPAI SU NAMO PROJEKTU
Parduodami du sklypai su tvenkiniu Kazlų Rūdos sav., Krūvelių k., Strazdų gatvėje.
Sklypas parduodamas su parengtu A + + klasės namo projektu ir leidimu statybai. Sklype yra iškastas tvenkinys. Bendras abiejų sklypų plotas yra 15,9 aro.
Privažiavimas iki Liepaitės sodų bendrijos asfaltuotu keliu, nuo Kazlų Rūdos 6 km, nuo Marijampolės 35 km, nuo Kauno 48 km.
Komunikacijos: Yra elektra, vandentiekis numatytas vietinis. Nuotėkos numatytas valymo įrenginys. Šildymas – numatytas oras-vanduo.
Projektas – gyvenamasis vieno aukšto namas su mansarda, 126,3 kv.m.
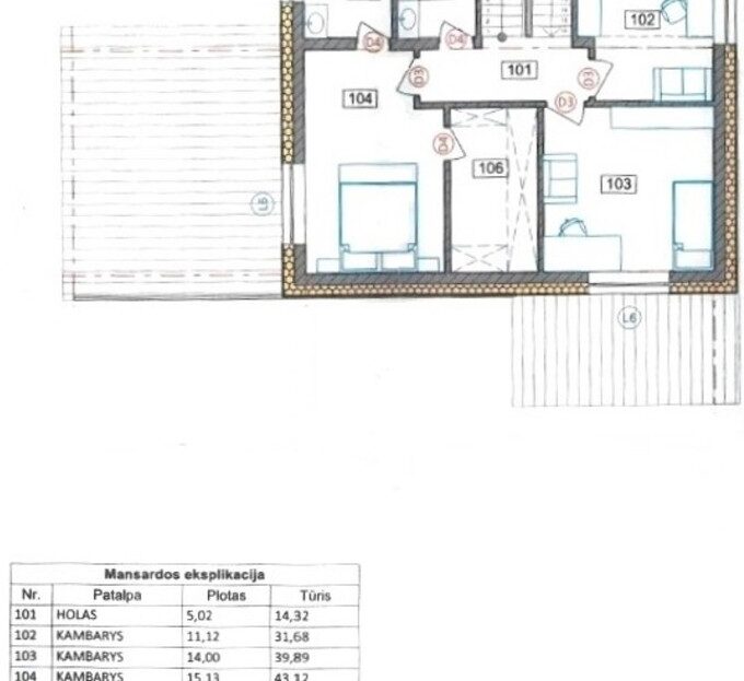
Pirmas namo aukštas – 64,72 kv.m ,bendra gyvenamoji erdvė, sujungta su virtuve atskirai suprojektuota wc ir pagalbinės patalpos. Prie bendrosios erdvės suprojektuota terasa, orientuota į pietryčių pusę. Iš bendros erdvės laiptais patenkame 61,58 km mansardą kurioje suprojektuoti 3 erdvūs miegamieji. Didysis kambarys su atskiru san. mazgu ir drabužine. Likusiems dviem kambariams priskirtas bendras 4,77 kv,m vonios kambarys.
Šis objektas yra geras pasirinkimas norintiems sutaupyti laiko projektavimams, nes nuo 2024 metų Lapkričio mėnesio. kito projektų terminai ,reikalavimai bei kainos.
Dėl išsamesnės informacijos teiraukitės telefonu, susiekite iš anksto prieš apsilankymą.


















































